戸建て
完売御礼ブルーミングガーデン 城南区梅林 全3区画
新築戸建て掲載日:2025年11月20日
| 価格 | 完売 | 住所 | 福岡市城南区梅林5丁目22-3 |
|---|---|---|---|
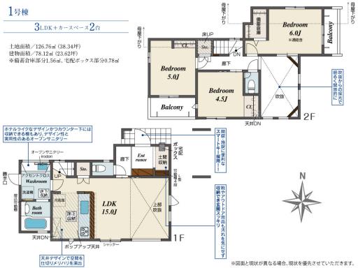
| 間取り | 3LDK | 土地面積 | 126.76㎡(38.34坪) |
| 構造 | 木造 2階 | 建物面積 | 78.12㎡(23.63坪) |
【最終1邸】本日、ご案内できます!
長期優良住宅×耐震等級3×住宅性能評価
・永く住み続けて欲しい‥長期優良の家♪
・耐震+制振(セーフティーダンパー)の地震対策が徹底された住宅
・耐震等級3「最高等級」の地震に強い安心住宅
・断熱性等級5 ZEH水準の断熱性
・住宅性能評価 建設住宅性能評価×設計性能評価W取得住宅
・最大30年の長期保証システム
・長期優良住宅だからこそ受けられる税金の優遇が多数あります
☆この物件だけのおすすめポイント☆
・地下鉄七隈線「梅林」駅 徒歩7分の好立地♪
不動産の購入には多くの知識(税金・住宅ローン・建築・価格相場)が必要です
全ての項目をお客様に分かりやすい様にご説明させて頂きます
買うまでの不安も、買った後の不安も、すべて一式、お引き受けいたします。
「住まい」を買うこと、それはゴールではなくスタートです。
買うまでではなく、買った後の人生にも寄り添いつづけながら「住まい」へ、「未来」へ、お導きします。
アクセス
| 住所 | 福岡市城南区梅林5丁目22-3 | 最寄り駅 | 地下鉄七隈線「梅林」駅 徒歩7分 |
|---|---|---|---|
| 学区 | 小学校:七隈小学校 中学校:梅林中学校 | その他アクセス |
物件詳細
| 建築年 | 2026年01月 | 総戸数 | 3戸 |
|---|---|---|---|
| 駐車場 | 2台 | 建・容率 | 50%・80% |
| 現況 | 完成 | 用途地域 | 第1種低層住居専用地域 |
- 設備
- ・追い炊き機能 ・郵便ボックス
・複層ガラス ・食器洗浄乾燥機
・浴室乾燥暖房機 ・防犯シャッター
・床下収納 ・モニター付きインターホン
・3ヶ月・2年・5年・10年の無料点検でアフターサービスをサポート!最大30年保証



















